

ご宴会はもちろん、会議、勉強会やご会食など、ご利用シーンは多岐にわたります。
人数やご予算、ご利用目的に合わせてお部屋をご用意いたします。お気軽にご相談ください。
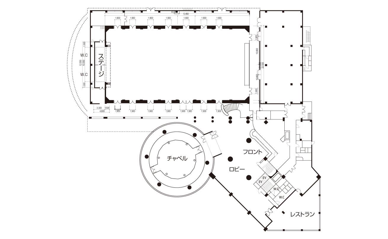
1F
| 会 場 | 面 積 | 収容人数 | 最大 テーブル数 |
|
|---|---|---|---|---|
| プラザホール (全室) |
1000㎡ | 302坪 | 500人 | 50卓 |
| ホールD (分割) |
500㎡ | 151坪 | 250人 | 25卓 |
| ホールAB (分割) |
380㎡ | 111坪 | 150人 | 15卓 |
2F
| 会 場 | 面 積 | 収容人数 | 最大 テーブル数 |
|
|---|---|---|---|---|
| フローラ | 190㎡ | 57坪 | 80人 | 7卓 |
| セレーナ | 80㎡ | 24坪 | 40人 | 4卓 |
| 和室会場 (鼓笛舞琴) |
167㎡ | 50坪 | 80人 | 8卓 |
| プラザドーム | 110㎡ | 33坪 | 40人 | 4卓 |
各種ご質問やご相談などございましたらお気軽にお問い合わせください
TEL.0175-23-8713
(電話受付時間 平日10:00~18:00)